A cukrászda és a ráncfelvarrás
- fagyizó, csillár, csoki
- egyedi kristálylámpa
- kisterem csillárja
- esti fényben, már szinte kész
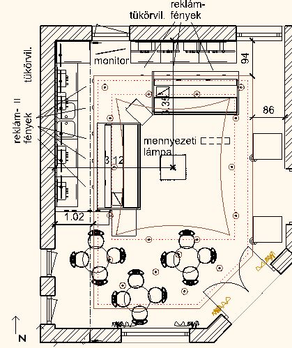
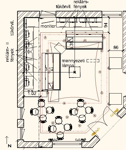
- kisterem álmennyezete
- CSOKIBARNA! Jeee!
- csokis mennyezet
- tervváltozat
- gerenda off lesz
- színpróba
- álmenyó készül
- Ilyen volt 1
- ezt hívták a hölgyek “ravatalozónak” 🙂
- Ilyen volt 2
- avagy így lesz a ?ravatalozóból? impozáns tér?
A cukrászda tervezése igazán édes kísértés volt, hát megkóstoltam. Csoki, tejeskávé mint fő színek, kristály ? gyönyörű csillárok, lámpák formájában, ez jutott először az eszembe tervezés kezdetén, s végig ez a volt vezérfonal.
A Páratlan Cukrászdát két ambiciózus ifjú hölgy álmodta meg. Tudással, lelkesedéssel, kitartó munkával elérték céljukat, éppen 10 éve annak, hogy az álomból valóság lett.
Náluk bátran bűnözhet az is, aki bármilyen édességet megehet, de az is, akinek csak gluténmentes vagy energiaszegény süti a megengedett. A minőség, szépség és a korrekt árak miatt az esküvői tortáikért is sorban álltak a megrendelők, mikor legutóbb ott jártam.
Mindenből a legjobbat adták, de egyre inkább azt érezték, hogy nemcsak a belbecsnek, hanem a külcsínnek is tükröznie kell az igényességüket. Szem- szájnak ingere, ahogy a mondás is tartja. Folyamatosan bővítették, fejlesztették a cukrászdát, lett kerthelyiség, játszótér a gyerekeknek, a régi teraszt pedig beépítették, így újabb helyiséggel bővült a vendégtér.
A további szépítésre már nem vállalkoztak, belátták, hogy nekik nem ezzel kell foglalkozniuk. Bölcs derűvel konstatálták, hogy a külső rész leginkább egy ravatalozóhoz hasonlít, úgyhogy ezen ideje túllépni 🙂 A felújítás első etapjában a világítást dekoratív álmennyezetekkel, Varga Béla csodás lámpáival terveztem meg. Új színeket festettünk a falakra, de jönnek még további szépészeti beavatkozások is.
Nézd meg, mit lehet kihozni egy egyszerű formájú térből két érdekes formájú gipszkartonos megoldással, pár jól megválasztott színnel és ötlettel. Nem is értem, miért pont csoki és tejeskávé árnyalatot választottunk 😉
A lámpák lettek a cukrászda igazi ékszerei, mondhatnánk, ?ők? hab a tortán.
Ilyen lett a felújítás után a tér. A legalsó képsoron látható, honnan indultunk.
(A burkolat és a bútor most még a régi.)
Ismersz valakit (vagy saját magadat), akinek a kluibját, kávézóját, irodáját (és még bármit) jó lenne felújítani? Hívj engem!















